西宁火电厂660MW 超超临界机组人身烫伤事故调查报告书

1.事故简称:西宁发电分公司“8.11”人身烫伤事故。

2.企业详细名称:青海黄河上游水电开发有限责任公司西宁发电分公司。
业别:火力发电。
3.企业隶属关系:中央企业。
上级直接管理单位:青海黄河上游水电开发有限责任公司。
4.企业经济类型:国有企业。
5.企业详细地址:青海省西宁市经济技术开发区甘河工业园区西区。
联系电话:0971-4699122
传真电话:0971-4699122
E-mail:xidian_zhb@126.com
6.企业成立时间:2013 年5 月。
注册地址:西宁经济技术开发区甘河工业园区。
所有制性质:国有企业。
执照情况:2013 年6 月19 日,青海省甘河工业园区工商行政管
理分局颁发了营业执照,统一社会信用代码91633000059141270T(1-1)。
经营范围:电站的开发与建设;电站的生产、经营;配售电;热力生产及供应;火电厂生产的粉煤灰、干渣、脱硫石膏副产品销售;废旧物资综合利用及销售(不含危险废物)。
7.事故起止时间:2016 年8 月11 日20 时46 分至20 时53 分。
8.事故发生地点:2 号机组柴油发电机室一级低温省煤器再循环泵操作间。
9.事故现场紧急救护情况:现场人员立即将两名受伤人员搀扶至背风处,并盖上棉被取暖,同时拨打120 急救电话,准备送往医救治。
10.事故发生时气象及自然灾害情况:气温:14℃至25 ℃;天气:多云,无自然灾害。
11.事故归属:青海黄河上游水电开发有限责任公司西宁发电分公司。
12.安全记录是否中断:中断。
13.事故等级(事故性质):一般人身事故。
14.事故类别:烫伤事故。
15.本次事故伤亡情况:2 名运行操作人员被汽水烫伤,1 人重伤1 人轻伤。医院诊断为张冬烫伤Ⅱ度和Ⅲ度各一半,烫伤面积90%;马国斌烫伤为Ⅱ度至Ⅲ度,烫伤面积50%。伤者8 月11 日送往青海省公安消防总队医院接受治疗后,于8 月14 日转入中国人民解放军总医院第一附属医院治疗。马国斌于8 月28 日从重症室转入普通病房进行治疗。张冬9 月18 日从重症室转入普通病房进行治疗。马国斌大部分创面已愈合,张冬进行了多次皮肤移植手术。目前2 人正在治疗中。
16.本次事故经济损失情况:
(1)截止2016 年10 月1 日,在西宁治疗费用12.6 万元;在北京304 医院治疗费用127.166 万元;目前两名伤者正在进一步治疗中。
( 2 ) 本次事故造成2 台再循环泵损坏, 再循环泵型号HPK-Y80-160A,每台泵32000 元,电机型号Y160M-2,每台电机3998 元,每套运费1000 元,共计7.3996 万元。
(3)压力表损坏一块0.05 万元。
(4)再循环A 泵、B 泵控制电源盘柜损失:2×0.2 万元/每面柜=0.4 万元。截止目前,共造成经济损失147.6 万元。
17.本次事故对电网运行、电力(热力)正常供应的影响情况:
本次事故未对电网运行、电力正常供应造成影响。
18.危险作业分类:无。
19.事故发生时不安全状态:
(1)再循环泵选型错误。一级低温省煤器再循环泵工作压力4.0MPa、工作温度85℃,低于系统设计压力6.4MPa、设计温度102.1℃的要求。
(2)一级低温省煤器再循环泵出口排空阀门设计不合理,直接排入机组排水槽,运行人员无法直接观察到管路中的空气是否排尽。
(3)未设计注水旁路门。一级低温省煤器进口总阀门(电动)未设计注水旁路门,在热态注水时,只能靠操作一级低温省煤器进口总阀门(电动)来控制开度和流量,操作人员无法精准控制开度,控制注水流量和速度。
20.事故发生时不安全行为:
(1)操作人员现场未见到再循环泵排空阀排出的连续不断的水流,无法判断空气是否排尽,就直接关闭排气阀。
(2)危险点分析不到位。一级低温省煤器系统恢复前,值班负责人未对操作人员交代热态注水时的安全注意事项、系统存在的安全风险。操作人员也未分析热态注水时该系统存在的安全风险。
(3)操作人员安全意识淡薄。操作人员工作经验不足,安全意识淡薄,对一级低温省煤器在热态注水情况下存在的安全风险不清楚,不掌握热态注水的方法和要求。
21.触电类别:无。
22.事故前工况:
(1)事故发生单位概况
西宁发电分公司基本情况
青海黄河上游水电开发有限责任公司西宁发电分公司(以下简称西宁发电分公司)成立于2013 年5 月,是青海黄河上游水电开发有限责任公司(以下简称黄河公司)的分公司,承担西宁火电项目的建设与生产、经营任务。现有员工273 人,下设综合部、计划部、财务部、生产技术部、HSE 部、政治工作部6 个职能部室和运行部、维护部、燃料质检部3 个生产部门。
按照《中国电力投资集团公司火电工程项目EPC 管理实施办法》(中电投规章〔2013〕48 号)规定,黄河公司采用EPC 总承包的管理模式,将西宁火电工程总承包给国家电投电力工程有限公司,签订了《西宁火电厂2×660MW 超超临界机组工程总承包建设合同》。
西宁发电分公司火电机组概况
西宁发电分公司2×660MW 机组为新建工程,一期建设两台660MW 超超临界燃煤间接空冷机组,并留有扩建2×660MW 机组的条件。该项目采用EPC 总承包管理模式,EPC 总承包单位国家电投电力工程有限公司,监理单位山东诚信工程建设监理有限公司,设计单位西北电力设计院。
1 号机组于2015 年12 月10 日完成启动调试,于12 月23日开始168h 试运行,12 月30 日20 时08 分通过168h 满负荷试运行。
2 号机组于2016 年3 月2 日0 时进入168h 试运行,3 月9日完成168h 试运行。随着设备移交,EPC 总承包单位大部分人员已撤离现场,目前仅有部分人员进行资料和尾工项目移交、设备缺陷处理等工作。
③一级低温省煤器系统简介
西宁火电项目一级低温省煤器系统由江苏海德节能科技有限公司负责设计和供货,布置于引风机出口,主要作用是降低排烟温度,提高机组效率;二级低温省煤器系统由国电富通公司负责设计和供货,布置于电除尘器前,主要作用是提高机组及电除尘器效率。凝结水从7 号低加入口、出口引出,混合后经增压泵升压依次进入一级、二级低温省煤器,最后进入6 号低加入口、出口凝结水管道。一级低温省煤器再循环泵布置在一级低温省煤器出口管道及入口管道之间,在凝结水温度较低的情况下,提高低温省煤器入口凝结水温度不低于65℃,以免造成烟气温度过低引起低温腐蚀。设计进入低温省煤器的流量为凝结水总流量的50%。在额定工况下,一级低温省煤器出口凝结水温度102.1℃。
低温省煤器投运情况如下:
1 号炉一、二级低温省煤器于2016 年3 月14 日在机组启动前,完成低温省煤器注水。3 月26 日16 时00 分至4 月6 日16时43 分共运行264.6 小时。
2 号炉一、二级低温省煤器共运行12 小时45 分。其中:
1)2016 年3 月15 日16 时42 分至3 月16 日0 时31 分,运行7 小时49 分,(因机组停运,低温省煤器退出运行)。
2)2016 年7 月21 日7 时15 分至12 时11 分,2 号炉一级低温省煤器运行4 小时56 分;7 时15 分至8 时35 分再循环A泵运行,共运行1 小时20 分,因再循环A 泵振动较大,低温省煤器退出运行。
④一级低温省煤器再循环水泵采购情况
一级低温省煤器由江苏海德节能科技有限公司制造,根据凝结水系统PID 设计蓝图说明,一级低温省煤器系统(包括再循环泵)设计由设备厂家负责。
一级低温省煤器再循环泵由江苏海德节能科技有限公司外购,设备厂家为上海水泵制造有限公司,双方采购合同中明确规定再循环泵设计压力4.0MPa。根据《中电投西宁火电厂2×660MW超超临界机组工程烟气余热利用系统换热器合同》(合同编号CPIPEC-XN-91108001800)第6 页第3.2.1.3 条要求,“一级低温省煤器系统凝结水系统工作压力为4.5MPa,所以凝结水管道上的所有配套的阀门设计压力不低于6.4MPa”。经核实,一级低温省煤器系统所有阀门设计压力均为6.4MPa,符合设计要求;再循环泵选型为4.0MPa,再循环泵工作压力未达到设计要求。
⑤一级低温省煤器再循环泵安装位置
2 号炉一级省煤器再循环泵设计安装在2 号柴油发电机室内,考虑汽水管道外泄对柴油发电机的影响,西北电力设计院于2016 年5 月9 日提出设计变更,设计变更单《NWEPDI-Z-21》,对再循环泵汽水管道进行了隔离。
(2)事故发生前状态:
2016 年8 月11 日20 时45 分,2 号机组带负荷560MW,主蒸汽压力23.0MPa,主蒸汽温度595℃,再热汽温度594℃,凝结水压力2.10MPa,一级低温省煤器水侧进口温度74℃,一级低温省煤器进、出口烟气温度均为116℃,一级低温省煤器水侧无压。恢复系统前,一级低温省煤器进口总阀门(电动)前管道已充满水,7 号低加入口至一级低温省煤器进口调门前、后隔离门、调门均在全开状态,一级低温省煤器进口总阀门(电动)、一级低温省煤器出口总阀门(电动)均在关闭状态。一级低温省煤器再循环A 泵、B 泵处于热备用状态,控制方式为“远方”。
23.事故经过及应急救援情况:
(1)事故发生经过
8 月10 日,运行人员巡检时发现,“2 号炉一级低温省煤器A、B 侧的出口排空门内漏”缺陷。维护部锅炉班工作负责人武骁办理工作内容为“2 号炉一级低温省煤器A、B 排空门内漏处理”的热力机械工作票,工作票编号2016083073,值长批准时间为8 月10 日18 时13 分至8 月11 日19 时13 分,运行人员安全措施执行完毕后,于8 月10 日18 时17 分许可开工,8 月11
日18 时10 分,缺陷消除完毕,工作负责人武骁押票进行系统恢复,并于8 月11 日18 时08 分办理工作票延期手续,工作票延期至8 月12 日10 时00 分。
11 日19 时30 分,集控主值班员张万录令一级巡检员张冬、三级巡检员马国斌恢复该票安全措施,按照“2 号炉一级低温省煤器注水检查卡”投运一级低温省煤器。
11 日20 时46 分,在2 号炉柴油发电机室一级低温省煤器操作间内,操作人员张冬开启2 号炉一级低温省煤器进口总阀门(电动)至5%,开始进行系统小流量注水。20 时52 分,将一级低温省煤器进口总阀门(电动)从5%开至13%(见图一)。
图片
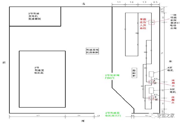
图一:事故发生时操作人员所站位置
20 时53 分左右,巡检人员屈庆和靳生文在2 号炉零米电梯处听到“砰”的一声巨响,接着听到2 号柴油发电机室方向有人呼救的声音,立即赶往,此时马国斌局部烫伤后从2 号柴油发电机室跑出,告知由于管道泄漏张冬被烫伤在操作间内,屈庆和靳生文跑至柴油发电机室门外时,看到张冬已从操作间爬至柴油发电机室(见图二)。
图片
图二、事故现场平面图
20 时54 分,靳生文汇报单元长苏顺财,20 时55 分,靳生文拨打120 急救电话。21 时22 分,救护车抵达事故现场将张冬、马国斌送至青海省公安消防总队医院进行救治。
20 时55 分,主值班员张万录在DCS 画面上发现2 号炉一级低温省煤器再循环B 泵启动,运行人员在集控室40s 内连续进行三次停泵操作无效后,切除一级低温省煤器再循环A 泵、B 泵电源柜操作电源(电源在2 号锅炉零米MCC 2A、2B 段),21 时20分停泵(见图三)。
图片
图三:DCS 系统历史曲线图
(2)一级低温省煤器系统隔离情况
一级低温省煤器再循环A 泵、B 泵中间支架断裂后,2 号机凝汽器、除氧器水位开始持续下降。20 时55 分,运行人员关闭七号低加入口至低温省煤器进口调门、七号低加出口至低温省煤器进口阀门,一级低温省煤器系统水侧解列。23 时40 分,运行人员开始对事故系统进行隔离,关闭七号低加出口至低温省煤器进口隔离门,关闭七号低加进口至低温省煤器调门前后隔离门,关闭一级低温省煤器A、B、C 增压泵进口门,关闭一级低温省煤器再循环泵调门及前后隔离门、旁路门,切除低温省煤器A、B、C 增压泵电源柜电源,12 日2 时00 分,一级低温省煤器系统隔离完毕。
24.事故报告、抢救和搜救情况:
事故发生后,西宁发电分公司负责人接到报告,立即赶赴事故现场,并启动人身事故应急预案,现场指挥一级低温省煤器系统采取隔离降压措施。分管生产的副总经理立即联系省内烧烫伤专业医院,赶赴青海省公安消防总队医院协调救治。
西宁发电分公司将事故情况汇报黄河公司有关领导、安全质量部、火电部负责人。黄河公司接到事故报告后,安全质量部负责人立即向集团公司、西北能源监管局进行汇报,西宁发电分公司向湟中县安监局、甘河工业园区管委会进行了汇报。
12 日上午,黄河公司火电部、安全质量部等部门人员查看事故现场,了解事故原因以及临时防范措施。
12 日中午,湟中县安监局、甘河工业园区管委会有关人员查看事故现场,了解事故情况。
12 日下午,集团公司副总工程师、安全质量环保部主任原钢到达事故现场,查看事故现场,了解设备运行及操作情况,召开会议,初步分析事故原因、了解操作过程,对事故调查以及伤者救治提出要求。
13 日上午,黄河公司副总经理魏显贵、白炎武、安全质量部、火电部负责人到达现场,安排事故处理和设备恢复。公司成立了由副总经理白炎武任组长的内部事故调查组,进驻现场开展事故调查。
13 日24 时,2 名伤者转入中国人民解放军总医院第一附属医院(北京304 医院)进行治疗。
25.事故原因分析:
(1)现场设备检查情况
2 号炉一级低温省煤器再循环A 泵、B 泵中间支架断裂,个别联接螺栓变形(见图四)。
图片
图四:再循环泵中间支架断裂、个别螺栓变形
再循环A 泵、B 泵电机基座轴向发生明显位移,电机基座卡扣与固定螺栓脱开,经测量约4~5cm(见图五)。
图片
图五:

再循环泵基座卡扣与螺栓脱开再循环A 泵出口压力表表针脱落,表盘破损,压力表量程6.0MPa(见图六)。
图片
图六:压力表表针脱落、表盘损坏
⑤再循环A 泵、B 泵控制盘柜内部元器件部分损坏(见图七)。
图片
图七:控制盘内元器件部分损坏

⑥2 号炉一级省煤器再循环泵安装在2 号柴油发电机室内,采取物理隔离措施,房间无照明设施(位置图见图二)。
(2)一级低温省煤器操作情况
8 月11 日19 时30 分,操作人员张冬、马国斌开始恢复“2号炉一级低温省煤器A、B 排空门内漏处理”的安全措施,开启再循环A 泵、B 泵出口排空门(零米)、一级低温省煤器本体排空门(系统最高点)、一级低温省煤器出口管道排空门。
20 时46 分,操作人员张冬将一级低温省煤器进口总阀门(电动)开至5%,开始进行系统充水,随后关闭再循环泵出口排空一次门。
20 时53 分,操作人员张冬将一级低温省煤器进口总阀门(电动)从5%开至13%,此时,再循环A 泵、B 泵出口侧中间支架断裂,泵体内大量汽水喷出,操作人员张冬、马国斌被汽水烫伤。
(3)原因分析
中间支架断裂原因分析:8 月11 日20 时45 分,2 号炉一级低温省煤器投运前机组带负荷560MW,烟气侧参数达到额定值,一级低温省煤器入口烟温116℃。20 时46 分至20 时53 分,少量凝结水进入一级低温省煤器后迅速被加热汽化并在系统内产生0.2MPa 的压力,出口烟温从116℃逐渐下降至106℃,一级低温省煤器出口管道温度上升至105.2℃。此时系统内空气仍未完全排空,一级低温省煤器本体、出口管道被汽化产生的蒸汽及未排出的空气充满。20 时53 分,操作人员将一级低温省煤器进口总阀门(电动)从5%开至13%,瞬间大量凝结水进入系统,系统内压力突升至0.668MPa,水流速度加快,在管道内产生“水击”现象。
因一级低温省煤器再循环泵安装在系统最低点,再循环泵额定压力4.0MPa,低于系统其它部件设计压力6.4MPa,再循环泵铭牌标注使用温度85℃,低于设计温度102.1℃,且泵出口门及排空一次门在关闭状态,在系统发生“水击”时,再循环泵中间支架断裂,使泵盖沿轴线向电机侧有明显位移(见图八)。
图片
图八:泵盖沿轴线向电机侧有明显位移
现场检查发现,一级低温省煤器再循环泵的泵壳、叶轮完好,中间支架断裂(见图九)。8 月17 日,对断裂的中间支架进行金相组织分析,材质为GGG-40(灰口铸铁),符合铸铁组织特征,与再循环泵使用说明书一致。(试验单位:青海电研科技有限责任公司,报告编号:DYKJ/JSBG-2016-046)。
图片
图九:再循环泵叶轮完好
再循环B 泵启动信号原因分析:一级低温省煤器再循环A 泵、B 泵中间支架断裂后,水流从中间支架与再循环泵出口连接处喷出,在操作间形成大量汽水,汽水进入再循环A 泵控制柜、再循环B 泵控制柜,造成再循环B 泵短路,导致DCS 显示再循环B 泵为运行状态。从泵体检查情况分析,由于中间支架断裂后,再循环泵轴承部分失去了支撑,而泵壳、叶轮无摩擦痕迹,由此可以判断再循环B 泵实际未启动,运行状态信号为误发。
综上所述,造成本次事故的直接原因:
级低温省煤器系统在热态注水时,操作人员按照2 号炉低温省煤器注水检查卡逐项操作,未对缓慢操作进行量化,操作人员缺乏热态注水经验,未分析热态注水对系统和操作人员带来的风险。操作人员将一级低温省煤器进口总阀门(电动)从5%直接开至13%,造成注水速度过快,且在管路系统空气是否排尽无法判断的情况下(空气排尽指从排气阀门流出不带气泡的连续水流为止),关闭了排空阀,导致管路系统发生“水击”;此外,再循环泵工作压力4.0MPa、工作温度85℃,选型低于系统设计压力6.4MPa、设计温度102.1℃的要求。在一级低温省煤器系统遇到“水击”时,因再循环泵中间支架强度最为薄弱,无法承受“水击”产生的撞击力而断裂,泵体内汽水从中间支架与泵体出口连接处喷出,造成操作人员烫伤。
由此可以得出,一级低温省煤器系统空气未排尽,注水速度过快、再循环泵选型错误是造成本次事故的直接原因。
间接原因:
(1)一级低温省煤器未设计注水旁路门,只能靠操作进口总阀门(电动)进行缓慢注水,操作人员无法精准掌握阀门的开度,控制注水速度和流量。因此,未设计注水旁路门是造成本次事故的间接原因之一。
(2)一级低温省煤器再循环泵出口管路排空阀设计不合理,直接排入机组排水槽,运行人员无法判断管路中的空气是否排尽。是造成本次事故的又一间接原因。
26.事故暴露的问题:
(1)设计存在安全隐患。
①在热态工况下,设计的低温省煤器系统注水操作存在安全隐患。热态注水未设计注水旁路门,无法实现设备的本质安全。
②一级低温省煤器再循环泵出口排空阀门设计不合理,直接排入机组排水槽,运行人员无法直接判断管路中的空气是否排尽。
③一级低温省煤器再循环泵操作间为后期设计,室内缺少照明设施,缺少应急通道,且未组织验收。
④一级低温省煤器再循环泵操作间位置狭小,操作不便,发生事故时,操作人员无法快速撤离。
(2)设备选型不满足设计要求。
一级低温省煤器再循环泵选型不满足设计要求。再循环泵工作压力4.0MPa,工作温度85℃,选型低于系统设计压力6.4MPa、设计温度102.1℃的要求。
(3)运行规程、系统图不完善,审批不严谨。
①运行规程缺少低温省煤器热态注水的操作说明和安全注意事项;缺少热态注水现场手动操作一级低温省煤器进口总阀门(电动)缓慢操作的详细说明,对阀门的开度和开启时间没有具体的量化指标;缺少再循环泵出口排空阀排空的相关要求;缺少系统设计参数、设备运行控制原理描述和运行调整指导等详细说明。
②2 号炉一级低温省煤器系统图有明显错误(如,机组编号错误、缺少A 侧低温省煤器入口排空门等)。
③西宁发电分公司运行分场负责人、生产技术部负责人、单位负责人对运行规程、系统图册层层审核、批准把关不严,在运行规程内容不全、系统图存在多处错误的情况下签字执行。
(4)操作票管理存在漏洞。
①2 号炉低温省煤器注水操作,使用“2 号炉低温省煤器注水检查卡”,代替了操作票进行操作。违反了“黄河公司电力生产操作票工作票管理规定”第三章第二节第十条“设备操作需办理操作票”之规定。
②2 号炉低温省煤器注水操作由主值班员张万录给操作人员下令,违反了“西宁发电分公司操作票管理细则”第三章第十三条、第二款“一般辅机启停、调整由运行值班负责人发布操作命令”之规定。
③“2 号炉低温省煤器注水检查卡”代替操作票操作,操作顺序错误。从操作第48 项开始,操作顺序出现错误,注水前应先将2 号炉低温省煤器所有排空阀门开启;电动门、手动门操作顺序错误,应先操作手动门,后操作电动门。
④操作项目并项。如“2号炉低温省煤器再循环A泵出口排空一次门开启,待水连续溢出后关闭”,应是二项操作,合并为一项,违反了“西宁发电分公司操作票管理细则”第三章第十一条、第四款“操作票一个项目只填写一个操作步骤,不准在一个项目内填写两个及以上的操作步骤”之规定。
(5)工程项目管理存在漏洞。
西宁火电项目采用工程EPC 总承包模式,在设备安装阶段,设备到货验收把关不严,参与验收的单位均未核对设备参数是否符合设计要求。西宁发电分公司工程管理人员、总承包商管理人员责任心不强,对设备到货验收、安装、调试、竣工验收把关不严。
(6)设备隐患排查治理开展不深入。
西宁发电分公司隐患排查治理工作不严、不细,隐患排查治理工作浮在面上。历次隐患排查未排查出一级低温省煤器再循环泵选型错误;未排查出再循环泵操作间没有安装照明灯;未排查出运行规程、系统图纸存在错误等隐患。
(7)员工的安全意识和业务技能较差。
①西宁发电分公司生产一线员工绝大部分为近几年新入厂的员工,员工的安全意识淡薄,自我保护意识不强,对《电业安全工作规程》以及黄河公司、集团公司安全生产管理制度和管理要求掌握不够,开展的安全教育培训针对性不强,效果较差。
②西宁发电分公司生产一线大部分员工工作经验不足,业务技能欠缺,业务技能培训开展不扎实。
27.事故责任分析和对事故单位、责任人的处理意见:
(1)事故定性:按照《中国电力投资集团公司电力事故调查规程》4.3.2.4 条规定,本次事故定性为一般人身事故。
(2)处理意见:
根据《黄河公司安全生产奖惩规定》、《中国电力投资集团公司电力事故调查规程》,建议对事故单位及相关责任人员给予以下责任追究:
(1)对事故单位的处理
①按照《黄河公司安全生产奖惩规定》第三十二条第(九)款规定,给予西宁发电分公司2015 年年度工资总额1%的考核。
②按照《中国电力投资集团公司电力事故调查规程》第8.5条规定,从事故之日起,中断西宁发电分公司连续无事故安全记录。
(2)对事故责任人的处理
张福祥,西宁发电分公司副总经理(主持工作),负责安全监督管理工作。安全生产管理不到位,安全生产制度建设不健全,员工安全教育培训不到位,对系统图纸、运行规程审批把关不严,对本次事故负有主要领导责任。依据《黄河公司安全生产奖惩规定》第三十二条第(四)款、第(六)款规定,给予记过处分,并给予2015 年年收入30%的经济考核。
苏瑞林,西宁发电分公司副总经理,分管安全生产、基建工程、达标投产、安全文明生产等工作。安全生产管理不到位,员工安全教育培训不到位,隐患排查治理不到位,未有效组织开展危害辨识与风险评估,对本次事故负有主要领导责任。依据《黄河公司安全生产奖惩规定》第三十二条第(四)款、第(六)款规定,给予记过处分,并给予2015 年年收入30%的经济考核。
王培建,西宁发电分公司副总经理,分管党建、工会、领导班子建设、干部队伍建设等工作。安全生产管理不到位,劳动安全与群众性安全监督工作开展不到位,对本次事故负有领导责任。依据《黄河公司安全生产奖惩规定》第三十二条第(四)款、第(六)款规定,给予通报批评,并给予2015 年年收入15%的经济考核。
沈继伟,西宁发电分公司副总经理,分管计划经营、物资采购工作,负有领导责任。依据《黄河公司安全生产奖惩规定》第三十二条第(四)款、第(六)款规定,给予通报批评,并给予2015 年年收入15%的经济考核。
要求西宁发电分公司按照“四不放过”的原则,调查确定本次事故责任部门和责任人员,按照《黄河公司安全生产奖惩规定》给予批评教育、行政处分和经济处罚,并将处理结果报公司安全质量部备案。
28.预防事故重复发生的措施:
(1)协调设计单位,确保设计满足现场要求。
①对一级、二级低温省煤器注水系统进行技术改造,在注水总阀门上加装旁路阀。保证一级、二级低温省煤器在热态注水时,采用旁路阀门缓慢注水,从根本上避免事故发生。
责任人:张福祥 完成时限:2017 年6 月
检查部门:火电部 检查人:陈晓文
②对一级低温省煤器系统再循环泵出口排空管路进行技术改造,方便运行人员就地检查和操作。
责任人:张福祥 完成时限:2016 年12 月
检查部门:火电部 检查人:陈晓文
③对一级低温省煤器再循环泵操作间、柴油发电机室进行整改,改善设备运行操作环境,操作间安装照明灯,完善事故应急状态下的撤离措施。
责任人:张福祥 完成时限:2016 年10 月
检查部门:火电部 安全质量部 检查人:陈晓文 钟成文
(2)更换一级低温省煤器再循环泵,满足设计要求。
更换一级低温省煤器再循环泵,保证设计压力不低于6.4MPa,并加强设备安装、验收、调试各环节的管理。
责任人:张福祥 完成时限:2016 年12 月
检查部门:火电部 检查人:陈晓文
(3)完善运行规程、系统图册。
①运行规程中增加“不同工况下低温省煤器操作”等内容,详细量化一级低温省煤器系统进口总阀门(电动)在不同工况下的开度和时间要求,同时以厂家设备说明书及现场实际情况为依据修订完善运行规程。
责任人:张福祥 完成时限:2016 年10 月
检查部门:火电部 检查人:陈晓文
②及时核对修改热力系统图存在的问题,严格规程、系统图审核、批准,明确审核责任,落实“谁审核、谁签字、谁负责”。
责任人:张福祥 完成时限:2016 年10 月
检查部门:火电部 检查人:陈晓文
(4)规范“两票”管理工作。
①加强“两票”培训,完善标准工作票、标准操作票库。
责任人:张福祥 完成时限:2016 年10 月
检查部门:火电部 安全质量部 检查人:陈晓文 钟成文
②加强工作票管理,工作票签发人、工作负责人、工作许可
人要严格履行安全职责,加强工作内容、安全措施的审核,避免出现工作内容不清、安全措施不全等现象。
责任人:张福祥 完成时限:2016 年9 月
检查部门:火电部 安全质量部 检查人:陈晓文 钟成文
③规范运行操作程序和步骤,结合HSE 体系建设,分析每一个操作环节可能存在的安全风险,有针对性地制定预控措施,落实操作前安全、技术交底。
责任人:张福祥 完成时限:2016 年9 月
检查部门:火电部 检查人:陈晓文
(5)加强设备质量验收管理。
建立健全设备验收管理制度,严把设备到货验收关,设备到厂后EPC 总包单位、安装单位、监理单位、业主单位要认真核对设备参数是否满足设计要求。设备安装、调试要严格“三级质量验收”,落实验收责任。
责任人:张福祥 完成时限:2016 年9 月
检查部门:火电部 检查人:陈晓文
(6)加强外包工程的安全管理。
西宁发电分公司要加强外包工程的安全管理,进一步明晰外包工程各单位安全管理责任,吸取本次事故教训,举一反三,梳理外包工程管理存在的问题,加强工程设计、施工、安装、验收、运行各环节的管理。
责任人:张福祥 完成时限:2016 年9 月
检查部门:火电部 检查人:陈晓文
(7)深入开展隐患排查治理工作。
西宁发电分公司要认真吸取本次事故教训,举一反三,对2号炉二级低温省煤器系统、1 号炉一、二级低温省煤器系统、全厂设备设施进行一次全面隐患排查,梳理系统设计、安装、验收、调试存在的问题,发现隐患立即组织处理。
责任人:张福祥 完成时限:2016 年10 月
检查部门:火电部 安全质量部 检查人:陈晓文 钟成文
(8)强化员工安全教育培训和业务培训。
西宁发电分公司要结合实际,制定员工安全教育和业务培训计划,把员工安全教育培训和业务技能培训纳入安全生产重点工作,定期组织培训和考试,健全安全教育和业务培训长效机制,提高培训的效果和质量。
责任人:张福祥 完成时限:2016 年9 月
检查部门:火电部 安全质量部 检查人:陈晓文 钟成文
图片
图片
图片
图片
图片
图片
图片
图片
图片