规范详解:规范详解之室外楼梯
大家好,往期我录制过一期楼梯有关的规范详解,今天的内容是在这个基础上细化,具体介绍“室外楼梯”在规范中的要求。

文中的这张照片是一个综合体在外立面上新增设了4部室外楼梯。
一般商业综合体新增室外楼梯的常见原因是按照老规范审批的高层商业建筑在后期招商时新增了“儿童活动场所”,由于2015年5月1日起生效的新版《建筑设计防火规范》中强制要求高层建筑内的“儿童活动场所”必须设置独立的专用楼梯,即楼梯只能给“儿童活动场所使用”,不能给除了此场所以外的其他场所和其他楼层使用,所以为了解决这一问题通常都采用增加“室外楼梯”的方式来解决此问题。
消防规范中对于“室外楼梯”的要求如下:
GB50016-2014(2018版)《建筑设计防火规范》
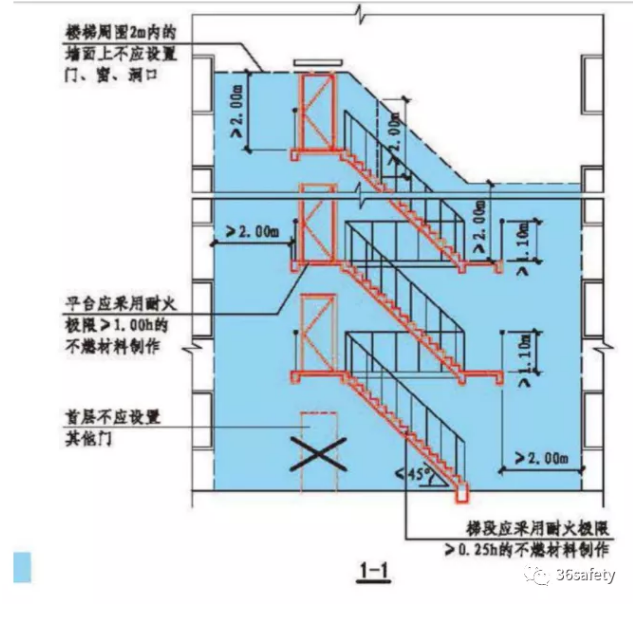
6.4.5 室外疏散楼梯应符合下列规定:
1 栏杆扶手的高度不应小于1.10m,楼梯的净宽度不应小于0.90m。
2 倾斜角度不应大于45°。
3 梯段和平台均应采用不燃材料制作。平台的耐火极限不应低于1.00h,梯段的耐火极限不应低于0.25h。
4 通向室外楼梯的门应采用乙级防火门,并应向外开启。
5 除疏散门外,楼梯周围2m内的墙面上不应设置门、窗、洞口。疏散门不应正对梯段。
规范条文解释如下:
6.4.5 本条为强制性条文。本条规定主要为防止因楼梯倾斜度过大、楼梯过窄或栏杆扶手过低导致不安全,同时防止火焰从门内窜出而将楼梯烧坏,影响人员疏散。室外楼梯可作为防烟楼梯间或封闭楼梯间使用,但主要还是辅助用于人员的应急逃生和消防员直接从室外进入建筑物,到达着火层进行灭火救援。对于某些建筑,由于楼层使用面积紧张,也可采用室外疏散楼梯进行疏散。
在布置室外楼梯平台时,要避免疏散门开启后,因门扇占用楼梯平台而减少其有效疏散宽度。也不应将疏散门正对梯段开设,以避免疏散时人员发生意外,影响疏散。同时,要避免建筑外墙在疏散楼梯的平台、梯段的附近开设外窗。



